Descripción
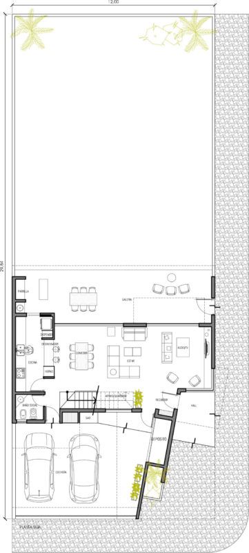
PROYECTO DE ARQUITECTURA en 2 plantas, resuelto en esquina. Amplia, cómoda y muy funcional. Pensada para familias jóvenes, por su versatilidad y funcionalidad.
Expediente Municipal listo para presentar (previa adaptación a las exigencias gráficas de cada municipio).
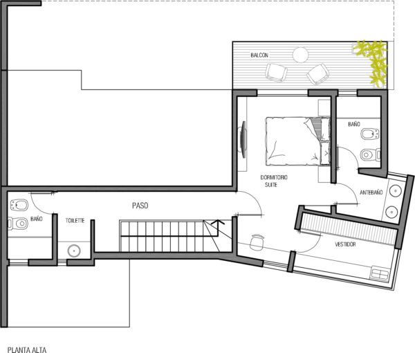
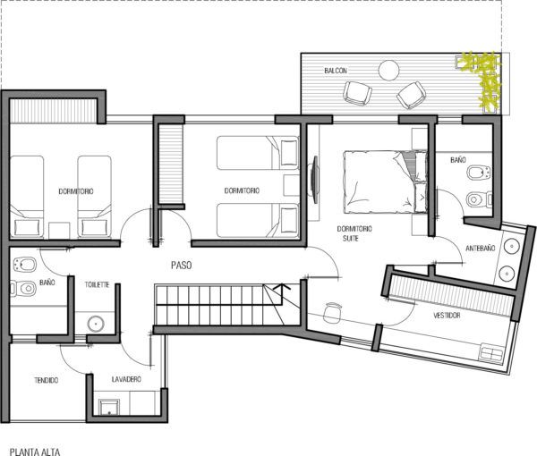
Diseñada para lote de 12m de ancho por 30m de largo. Se puede construir en etapas en la planta alta, llegando a quedar una vivienda de 3 dormitorios.
Programa inicial: 1 dormitorio, estar comedor, escritorio, cocina con desayunador, 2 baños, cochera doble, techo de chapa.
Programa Final: 3 dormitorios, estar comedor, escritorio, cocina con desayunador, 3 baños, lavadero y tendedero independiente, cochera doble, galería amplia con asador, techo de chapa.
Superficies:
- cubiertos: 104m² ampliables a 130m².
- semicubiertos: 4 m² ampliabes a 36 m².
Información a entregar:
- Planimetría en CAD (permite su edición y adaptación a otros terrenos o necesidades).
- Expediente municipal en CAD (permite su edición y adaptación para la presentación en distintos municipios).
- Planos de Instalaciones de Agua, Cloaca, Electricidad y Gas.
- Cálculo estructural en CAD con todas las planillas de zapatas, bases, columnas, vigas, losas y escalera.
- Planos en PDF.
- Croquis.
- Renders exteriores e interiores.




































Valoraciones
No hay valoraciones aún.